Проект за семејна куќа во Маврово – современ дом со поглед кон Мавровско Езеро





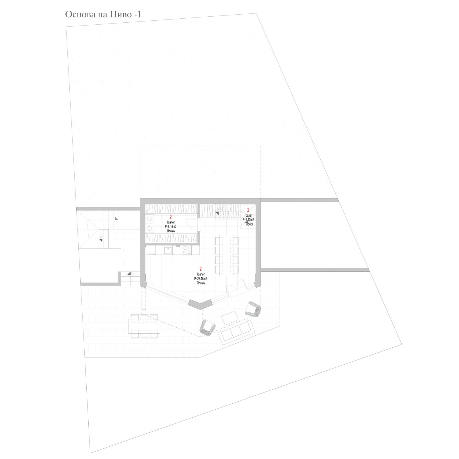
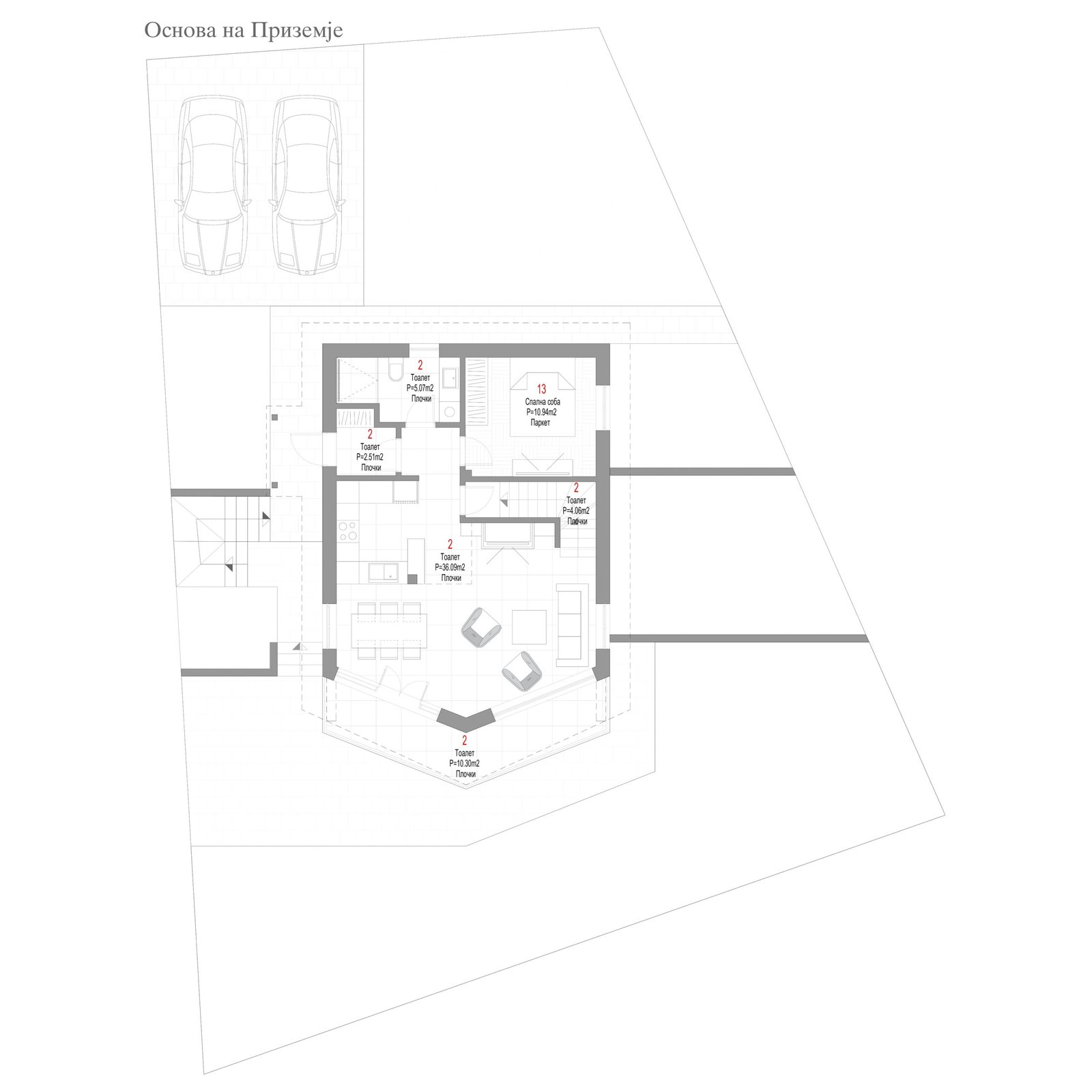
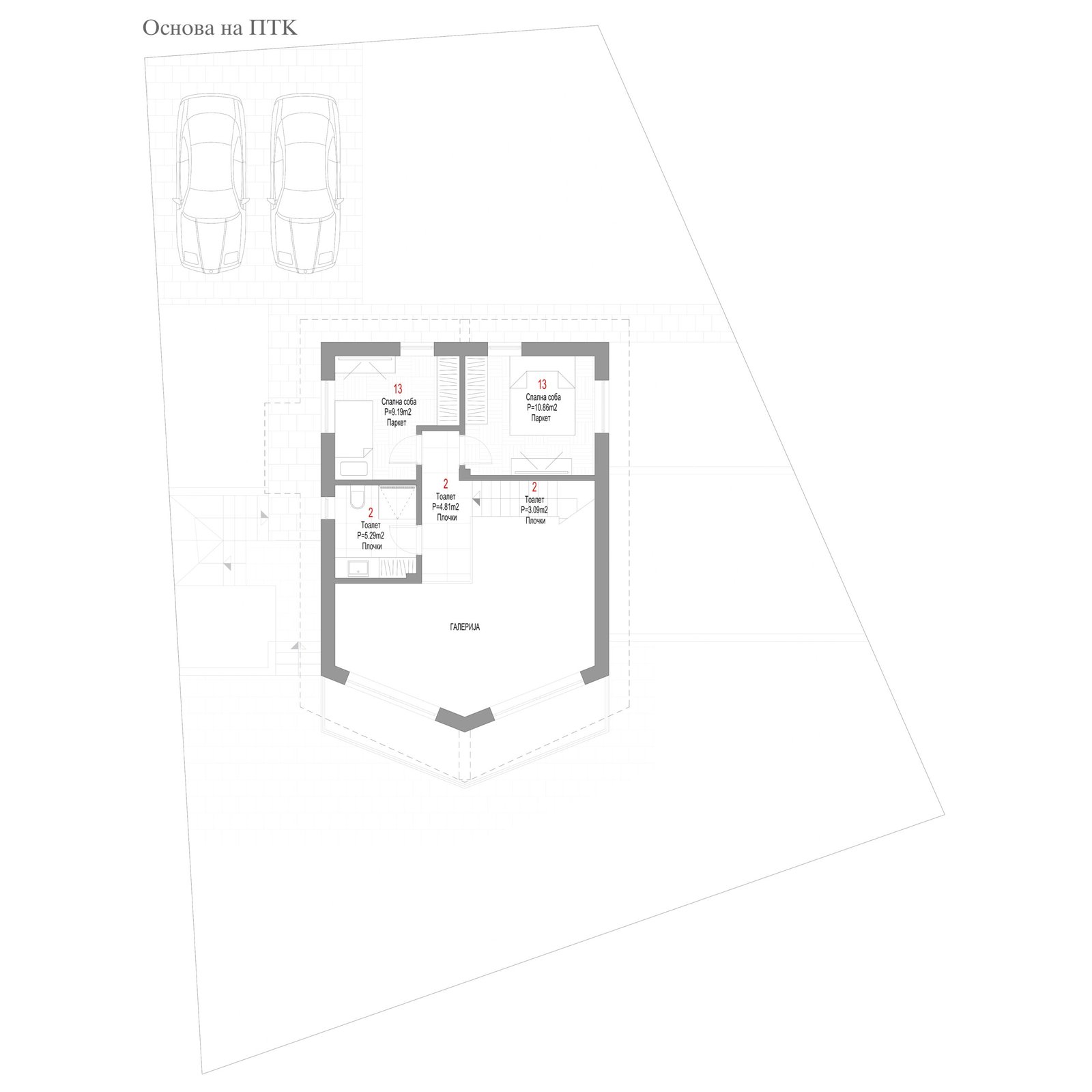
Дизајнот на куќата следи јасна организација: подземното ниво обезбедува технички и помошни простории, приземјето е пространа дневна зона со кујна и трпезарија поврзана со дворниот простор, додека катот е резервиран за спални соби со сопствени тоалети. Панорамските прозорци внесуваат изобилство светлина и овозможуваат постојан контакт со планинските предели и водената шир на езерото.
Стрмниот покрив ја нагласува планинската архитектура и овозможува хармонично вклопување во природната околина. Просторната тераса е место каде утринското кафе и вечерните разговори добиваат ново значење – со погледи кои секогаш одземаат здив.
Оваа куќа не е само архитектонско решение, туку и сцена за фамилијарни средби, топли семејни моменти и спомени кон остануваат за цел живот. Тука целото семејство ужива во мирот на природата и спокојот на езерото.



